Over dit project

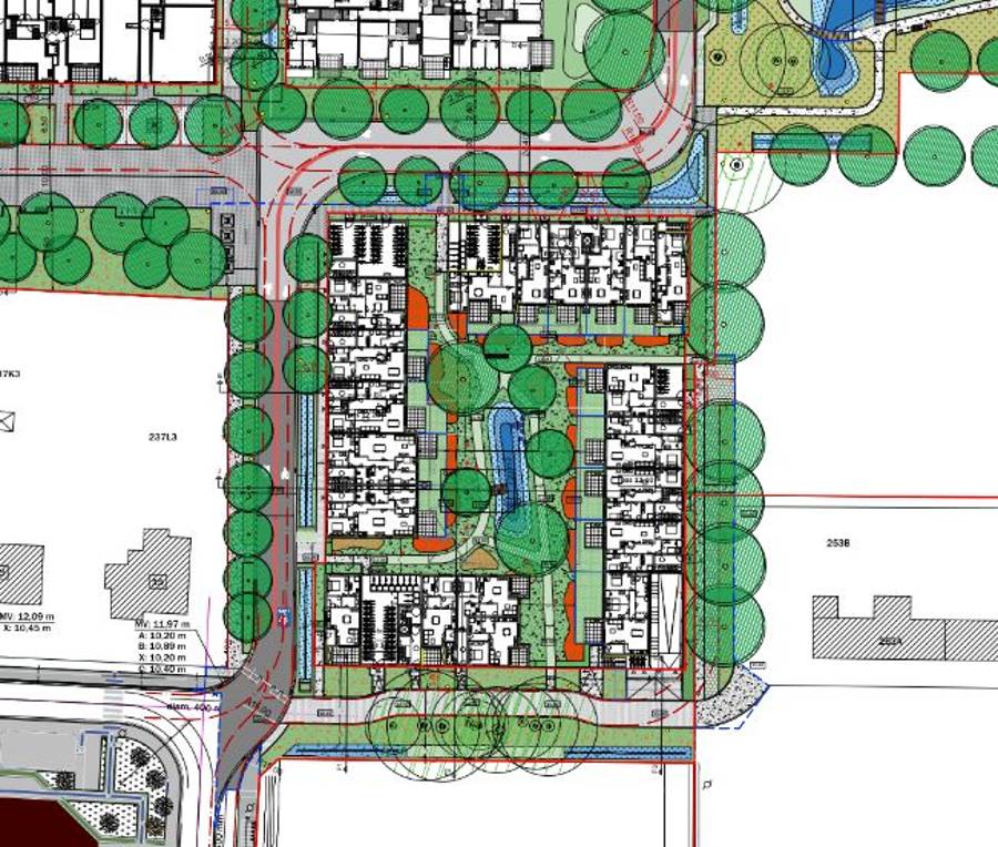
Nieuwbouwvan 64 sociale huurappartementen met infrastructuurwerken aan de Vinneweg teTremelo. De appartementen zijn verdeeld over vier bouwblokken met een gedeeldeondergrondse parkeervoorziening. De zone tussen de bouwblokken wordt alsverkeervrije, groene ruimte ingericht. Dit project is een CBO-woonproject enwerd aldus opgestart door een private ondernemer.

Programma
64 huurappartementen met infrastructuur
Timing
bezig met voorontwerp
Ontwerper
Architect: OM/AR architecten uit Antwerpen. Ontwerper infrastructuur: OKRA uit Utrecht
Aannemer
Durabrik uit Drongen
Woningtypes

appartementen met 1 tot 4 slaapkamers

Wij maken gebruik van cookies

We maken gebruik van cookies om gegevens m.b.t. de prestaties en het gebruik van deze website te verzamelen & analyseren, om sociale netwerkfunctionaliteiten aan te bieden en onze content & advertenties te verbeteren en personaliseren. Bekijk onze privacy policy voor meer informatie.

Wij maken gebruik van cookies

We maken gebruik van cookies om gegevens m.b.t. de prestaties en het gebruik van deze website te verzamelen & analyseren, om sociale netwerkfunctionaliteiten aan te bieden en onze content & advertenties te verbeteren en personaliseren. Bekijk onze privacy policy voor meer informatie.